湘潭房產網5月12日訊
項目名稱:碧桂園•黃金時代(10#)方案設計變更
建設單位:湘潭市潭碧房地產開發有限公司
建設地點:湘潭市高新區曉塘中路以北、長新路以南、錦塘路以西、望月路以東
建設性質:改建
公示事項:建筑方案
項目簡介:
1、規劃變更原因:
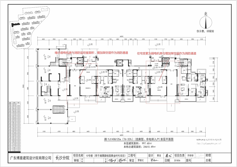
①無法滿足小區弱電系統管控要求:原設計弱電機房面積過小,無法滿足設備安裝要求,需增加面積。
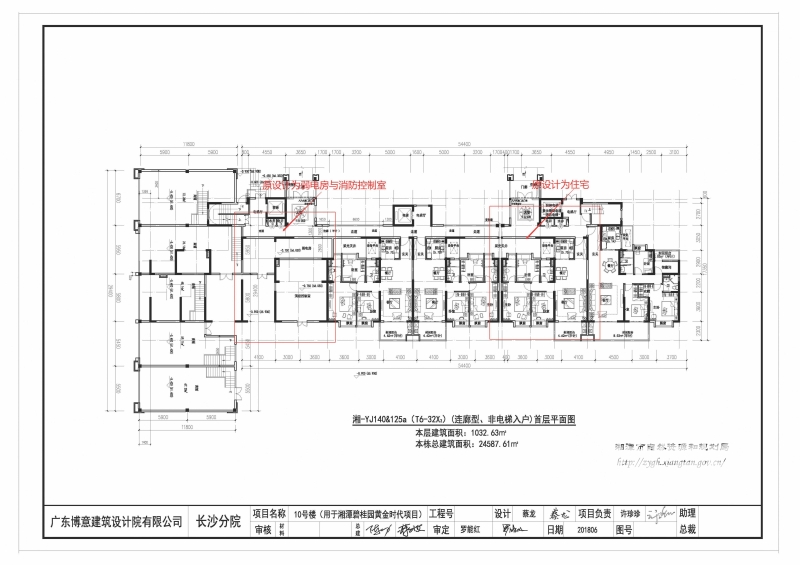
②根據建筑設計消防規范第7.2.3條,建筑物與消防車登高操作場地對應的范圍內,應設置直通室外的樓梯或直通樓梯間的入口;湘潭碧桂園.黃金時代10#消防車登高操作場地位于10#的南側,因此施工圖按照規范調整了10#首層弱電機房的位置,減少了中間一套戶型,增加了與南側消防登高操作場地直通樓梯間的連通入口,詳見附圖。
③根據業主提供的項目2018年9月17日已審批施工圖,項目10#棟一層平面東單元中間戶為弱電機房及消防通道。
2、規劃變更內容:
原一層規劃設計弱電機房位于10#樓西單元架空層,東單元對稱位置為住宅,現該套住宅變更為消防通道+弱電機房,詳見圖示。




現予公示,公示期從2022年5月12日至2022年5月20日。如有異議,請在公示期內將意見(書面形式)遞交至市民之家北棟三樓工程建設項目審批服務區C-101、102窗口。聯系電話:52817094