湘潭房產網7月9日訊 九華世紀城相關公示:
項目名稱:九華世紀城
建設單位:東之陽地產開發有限公司九華分公司
建設地點:蓮城大道以東,開源路以南,樂塘路以西,官塘路以北
公示事項:項目總平面圖(修改)
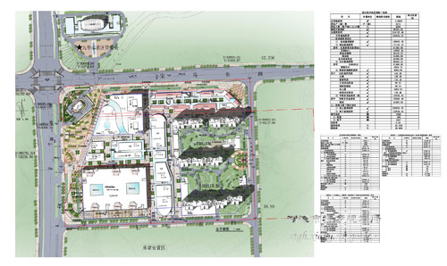
項目簡介:本地塊位于蓮城大道以東,開源路以南,樂塘路以西,官塘路以北。項目用地北側為九華管委會大樓,南側為紅旗社區,西側為九華新城,東側為九華世紀城·東苑;本次地塊規劃用地面積為82523.17平方米、總投資8個億,本次建設規模為9棟高層住宅樓,1棟公寓,1棟幼兒園,西北角設置4層商業街,臨樂塘路為1層的商業服務網點,1#至9#樓、公寓、商業街及幼兒園的用地范圍設有一層地下車庫。
該地塊原規劃總圖2015年獲批,為進一步提升項目居住品質,對該地塊規劃總圖進行了修改。
一、新總圖規劃將原11棟高層住宅調整為9棟高層住宅,綠化率大幅提升,容積率降低,打造更加宜居的高端社區。
二、為了合理利用土地資源,原規劃項目配套幼兒園位置調整至項目東南角位置。


效果圖(2015年)

總平圖(2015年)

總平圖

鳥瞰圖
公示期限為2018年7月4日至2018年7月17日,如有異議,請在公示期內將意見填寫在下欄的留言版塊或以書面形式遞交至湘潭市城鄉規劃局湘潭經開區規劃分局,聯系電話:0731-58271319;聯系人:程林;聯系郵箱:jhghj411201@126.com。