
湘潭房產網3月6日訊 告別新中式、歐式豪裝,這樣的小清新的原木家居,就像清水里的芙蓉,雖只略施粉黛,但看起來別有一翻味道。

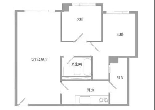
改造前

沒有任何功能空間,按照既有的房形,填充起居室、客廳餐廳、衛生間的布置。
改造后

去除非承重的隔斷,打通次臥的空間,改造成兒童書房與儲藏空間。衛生間與廚房的布局不變,在衛生間一旁的,剩余空間,設計家用的衣帽間。
緊湊卻不擁擠的66平小家,在大白墻上,布置上木飾面。以櫥柜的形式,讓沿墻的空間得以利用。

沒有電視柜,用一體的隔板墻代替。客廳的陳設,極為簡約。

把畫放在櫥柜的邊上,為客廳增添更多的清新氛圍感。

客廳旁的折疊餐桌,用白磚墻裝飾墻面。

色彩鮮艷的家居,餐桌的環境顯得甜甜的。

工作間的背景墻,一半打通,裝飾這樣的玻璃幕窗。

客廳旁的兒童房,留下一面墻,用作工作間。

夾在墻壁里的櫥柜,里面堆滿了小孩的玩具。

黑板墻,這是留給孩子的禮物。隨意畫畫的習慣,就想讓小孩子保留下來。

步入式的衣帽間,設計在走廊的邊緣。

床頭裝上吊柜,移動式的中島收納。既是裝飾物,也有功能性。

起居室的窗沿,還用木飾面裝飾,小細節處足以見到小宅的用心之處。

你能想到的,我們都準備好了,你的家,我們來承包!!!
公司地址
官方網址:http://www.hnzyzs.com
公司地點:湘潭市岳塘區建設中路158號知音裝飾(市環保局正對面)
聯系方式
1.親臨知音裝飾門店了解詳情
2.電話報名:18073218115
3.微信報名:關注知音裝飾公眾號微信,回復“姓名+聯系方式+小區”即可
4.短信報名:編輯“姓名+聯系方式+小區”發送到18073218115